Un loft que envuelve el programa
Organicemos una casa. ¿Realmente necesitamos tanta tabiquería? Si pudiéramos envolver las estancias que necesitan más privacidad, y liberar el espacio restante, podríamos organizar el interior de manera natural, basada más en el uso lógico de los espacios, y no tanto en las convencionalidades. Esto mismo es lo que se plantea el equipo de SABO-Project al enfrentarse al proyecto de reforma de un apartamento en París. Escapando de las soluciones habituales, los arquitectos proponen una intervención poco común, que resulta ser, además, la más práctica.
- Industrial, pero cercano
- Una isla de programa
- Una composición de escenas
- De altillos e interiores
- Un interior sencillo
- Soluciones a medida
Industrial, pero cercano
Se trata de la reconversión de un apartamento de un antiguo edificio de los años 20. Debido al carácter industrial de la construcción, la estructura de vigas y pilares de hormigón presenta un trazado ortogonal que facilita la organización del espacio interior. Otra de las virtudes de un edificio de este género es la gran cantidad de superficie acristalada. Las ventanas recorren la fachada de lado a lado, bañando el interior de luz natural. La intervención juega con las preexistencias para incorporarlas al proyecto, trayendo al presente el valor de la historia del edificio. La casa acoge la materialidad del hormigón como elemento distintivo, eliminando antiguos revestimientos y falso techo. Un nuevo pavimento de madera suaviza el aire industrial del interior, y el cuidado conjunto de mobiliario lo hace más humano.
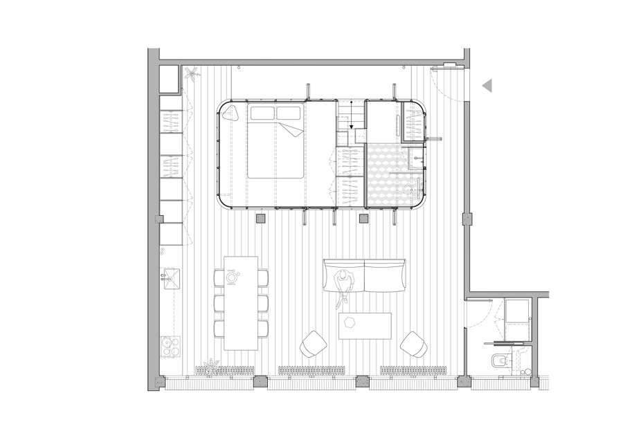
Una isla de programa
Sin duda, lo más llamativo del proyecto es la distribución del programa. El interior adquiere el carácter de loft gracias al esquema abierto de la planta, que recoge en un solo elemento cerrado las estancias más privadas. La intervención plantea un núcleo o “isla”, en palabras de los arquitectos, que como una envolvente metálica encierra el dormitorio y el baño, generando flujos de circulación a su alrededor. La isla se realiza con bastidores de aluminio y un cerramiento de 40 planchas también de aluminio anodizado. Las planchas presentan un patrón de perforaciones que permiten la entrada de luz tamizada hacia el interior de las estancias centrales. Las esquinas redondeadas facilitan el movimiento alrededor de la isla, y hacen que se perciba como un elemento singular, o pieza de mobiliario de gran formato.
Una composición de escenas
Fuera, el espacio principal acoge la parte abierta del programa, agrupándolo en pequeñas escenas domésticas. La cocina se sitúa hacia un lado de la vivienda, incorporada a un magnífico mueble a medida, de la fachada al interior. La encimera blanca de cuarzo sintético se enfrenta a un divertido alicatado de motivos geométricos, alternando siempre tonos azules con blancos. Como un cableado provisional, la lámpara de diseño cuelga del techo sobre la mesa de comedor, aportando a la escena un toque informal y divertido.
De altillos e interiores
Los espacios del interior de la isla se viven como pequeñas cápsulas. Las planchas practicables de aluminio se abren como contraventanas, y una segunda piel de policarbonato filtra la luz, creando en el interior una atmósfera difuminada y ambiente tranquilo. Una banda de armarios ocupa el lateral de la estancia, con un acabado conglomerado que facilita la amortiguación acústica. Sobre esta estancia se proyecta un segundo dormitorio de invitados en altillo, que acerca al usuario a la textura del hormigón y ofrece una nueva perspectiva del espacio principal.
Un interior sencillo
La circulación alrededor de la isla añade un grado más de privacidad a las estancias del interior. El acceso al baño se realiza por la zona posterior, alejado de la escena principal, y, sin embargo, el juego de doble piel de aluminio y policarbonato, enciende el interior de luz natural. Las paredes se cubren con un alicatado de panel de abeja esmaltado en blanco, potenciando la nitidez de la estancia, y el suelo se cubre con baldosa hidráulica formando un colorido mosaico. La estancia se dibuja de manera sencilla, sin excesivo mobiliario ni demasiados cambios de material.
Soluciones a medida
La reforma es un ejemplo de cómo puede llegar a transformarse un espacio, respetando el perímetro original del interior. De esta forma, la casa respira, facilitando la circulación alrededor del núcleo, como único elemento cerrado. Los espacios más íntimos quedan independizados, y la luz de la fachada llega a todas las estancias, ya sea directamente o a través de un filtro. En definitiva, una solución perfecta.
2 Comentarios
Muy feo, la verdad
Original y practico. No me importaría vivir allí.La idea de lo que es " un hogar" y sus necesidades, en el Siglo XXI ya no es la que era