Reforma en Ciudad de los Periodistas
Reforma integral de un piso de 120m2 útiles en Ciudad de los Periodistas (Madrid).
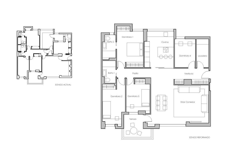
Una familia con 2 hijos acude a Reformmia para transformar la vivienda que acaban de comprar en una vivienda más diáfana y práctica.
Con el fin de simplificar el acceso y distribución a todas las estancias de la vivienda, se convertirá la puerta de servicio en principal anulando la original. Con este cambio se consigue, además, regularizar el espacio del estar y facilitar su amueblamiento.
La cocina cobrará importancia en el corazón de la casa gracias a un gran cerramiento de hierro y vidrio que la dejará totalmente a la vista.
La tarima de madera oscura y la carpintería blanca elegidos en toda la casa dejarán todo el protagonismo al verde de los muebles de cocina y a los alegres acabados del baño de los niños.
Completan el programa de esta casa cuatro dormitorios, un lavadero y una acogedora terraza en la que disfrutar del sol durante todo el año.