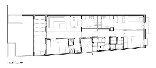
Partición y reforma de piso
David Benito Cortázar
Profesional habitissimo | Publicado el 13/01/2011
El objetivo del proyecto era dividir en dos apartamentos un típico piso del ensanche de Barcelona, compartimentado, y con pocas habitaciones iluminadas de forma natural, que se conservaba en su estado original. En todo momento se ha querido preservar el carácter de la antigua vivienda, manteniendo los elementos característicos de este tipo de edificios. Al mismo tiempo, se ha buscado distribuir los espacios de forma que la luz estuviera presente en las estancias principales.