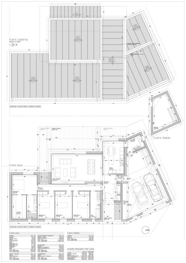
VIVIENDA UNIFAMILIAR EN URBANIZACION "ATHENEA". RENEDO DE ESGUEVA
Raul Saez
Profesional habitissimo | Publicado el 09/07/2021
VIVIENDA UNIFAMILIAR UBICADA EN LA URBANIZCION "ATHENEA", EN RENEDO DE ESGUEVA (VALLADOLID).
DOTADA CON GARAJE DE DOS PLAZAS Y UN PORCHE POSTERIOR.
LA ORIENTACION AL SUR HA SIDO EL MAYOR CONDICIONANTE EN EL DISEÑO DE LA VIVIENDA.
EDIFICIO PROYECTADO CON UNA GRAN EFICIENCIA ENERGETICA