Cuando la luminosidad y el color blanco se alían con la amplitud
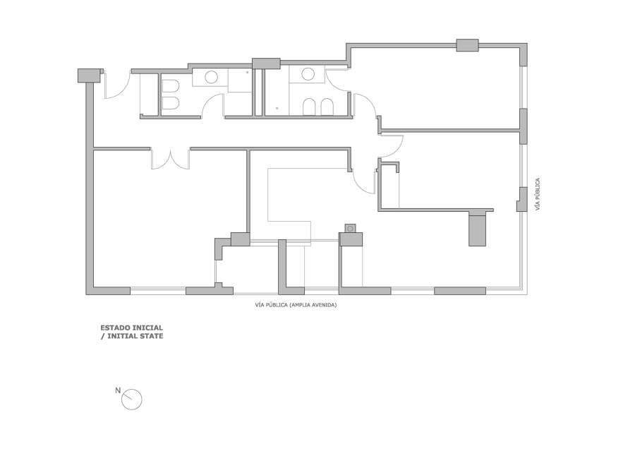
Se trata de un piso integrado en la quinta planta de un edificio residencial situado en una de las principales avenidas de acceso a Valencia. La vivienda es muy luminosa, ya que cuenta con dos fachadas exteriores en esquina orientadas a sureste y suroeste con una amplia vista urbana sobre la avenida. En esta actuación el objetivo principal consistía en dotar a la vivienda de una mayor calidad espacial, reduciendo la compartimentación y mejorando la relación entre las distintas estancias. De manera que la distribución resultante dispone de espacios más amplios y prácticos.
La caja de nogal
El elemento más característico y distintivo de la vivienda es la “Caja de Nogal”, que acompaña al visitante desde el vestíbulo, en el lateral del distribuidor, hasta llegar al espacio principal, donde el frente de la cocina cierra la envolvente de dicha caja. Este panelado de madera pretende proporcionar al piso elegancia y sofisticación pero sin perder calidez de hogar.
Mirando al exterior
Otro de los puntos singulares del piso está en el encuentro entre ambas fachadas. Es un mirador acristalado con una bonita vista panorámica, que debido a la configuración estructural del edificio, cuenta con un pilar muy próximo. La presencia del pilar supuso tratar este espacio prácticamente como residual en la distribución de origen. En la nueva configuración de la vivienda, por su situación en planta y por la luz que introduce al interior, se integra en el espacio principal adquiriendo gran relevancia. Dicho pilar se dejó de hormigón visto eliminando el revestimiento que lo cubría, y adosado a él se realizó un mueble-baúl a medida sobre el que disponer un colchón, convirtiendo este lugar, bautizado como “Rincón del Sabio”, en idóneo para el descanso o la lectura mientras se contempla la vista.
7 Comentarios
Me encanta, no sólo la amplitud, la caja de nogal, las columnas sin vestir, el suelo... es todo un conjunto perfecto. Una reforma realmente brillante.
La casa parece muy funcional así que desde luego, una gran opción. Prefiero las casas así a las que son tan bonitas que luego te sabe mal usar... por lo menos a mí
La casa parece muy funcional así que desde luego, una gran opción. Prefiero las casas así a las que son tan bonitas que luego te sabe mal usar... por lo menos a mí
La casa es muy chula aunque se nota mucho la diferencia entre luz natural y artificial o cuando hay más artíficial como en el cuarto, desde luego nada como la primera...
La casa es muy chula aunque se nota mucho la diferencia entre luz natural y artificial o cuando hay más artíficial como en el cuarto, desde luego nada como la primera...
Lo de la caja de madera debe ser tendencia, lo he visto en otros trabajos y la verdad es que me parece una pasada. El resto de la casa genial, un equilibrio perfecto entre elegancia y funcionalidad.
Sí, yo también lo vi por ahí en otro trabajo. Me parece súper elegante, la verdad.
Pues desde luego blanco más luz sin duda, siempre es una fórmula ganadora. Me gusta mucho el resultado, esta casa es perfecta en mi opinión