Una reforma de 60.000 euros para un coqueto piso
Maria Archer
Profesional habitissimo | Publicado el 29/08/2019
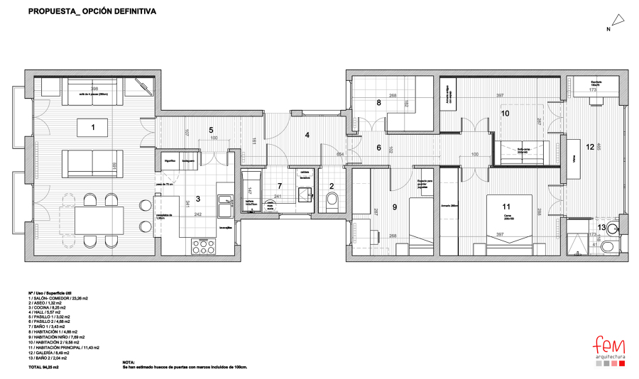
Cuando esta pequeña familia adquirió su nueva vivienda, vieron un sueño cumplido: un gran piso de finca regia en el Eixample de Barcelona para hacerlo a su gusto. Fem Arquitectura comenzó a trabajar en el proyecto para plasmar todas las necesidades de la pareja: dejar a la vista la estructura original, unir la cocina y el salón, arreglar baños y la galería, revisar las instalaciones y carpinterías, etc…
En tiempo récord, su hogar quedó listo para acoger a su nuevo bebé. Y todo ello con un presupuesto para la reforma de 60.000 euros. Comprueba el resultado tú mismo.
Un baño funcional y otro para disfrutar
Sin límite para la familia
Madera para una cocina especial
4 Comentarios
Con 60000 € la mayoría hace una reforma así, lo malo es q la mayoría no tenemos ese dinero.
Las paredes con "ladrillo" en el lavabo y en la cocina, de qué material son exactamente? Dónde se puede comprar en Barcelona? Cuánto cuesta el m2? Lo puede poner cualquier persona o se necesita un profesional? Muchas gracias.
Hola Carol,
Las paredes son de la finca ya que es antigua. Lo que hicimos fue dejarlos vistos para que adquiriese este "look". Tienes opción de hacer un revestimiento de ladrillo que no sea estructural. Consúltanos, sin compromiso, si necesitas algún servicio profesional para estudiar las posibilidades. Tienes nuestros datos en nuestra ficha de Habitissimo. Gracias por escribirnos.
Pues creo que al piso le ha faltado más de interiorismo por 60.000€, honestamente. Creo que podría haber quedado más "acurado"... ????
Hola Josep,
En este proyecto no hay diseño de interiorismo. El presupuesto corresponde a la reforma únicamente (distribución, tabiques, paredes, instalaciones, apeos, gestión de licencias, visado de proyecto, etc...). El piso está en pleno centro y ha quedado precioso.
Gracias por escribirnos.
Ok entendido. También es cierto que para gustos, los colores. Seguro que el trabajo es excelente.
No sé si es adecuado poner lo siguiente. La idea de poner los rollos de papel en el suelo es anti funcional, anti higiénico y da sensación de desorden.
Una cocina tan pequeña con tantas aberturas no optimiza el espacio.