Reforma interior de piso para una familia con dos hijos en Murcia
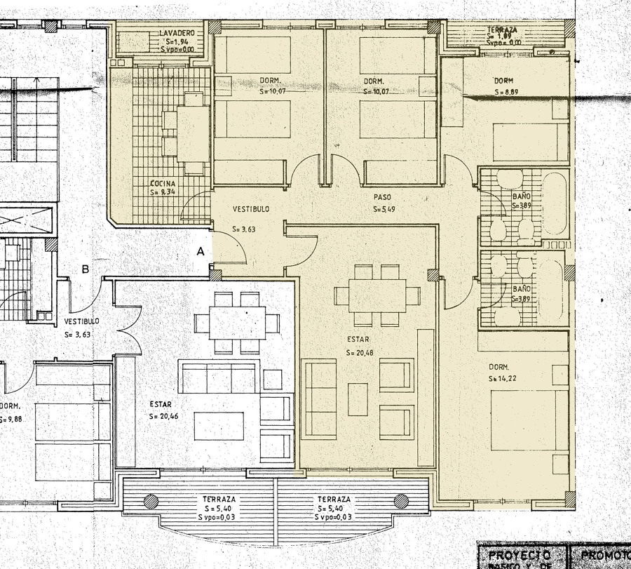
Originalmente la vivienda tenía 4 dormitorios y era un espacio muy compartimentado de estancias pequeñas comunicadas por un pasillo estrecho
La decisión fundamental fue la de no utilizar tabiques sino muebles de madera para organizar las diferentes estancias. Esto permite disponer de espacio para almacenamiento integrado en el diseño general de la casa y ayuda a disponer de unos acabados de buena calidad. Como se aprecia en el plano de planta, una línea de armario envuelve el salón y va dando acceso al resto de estancias, a la vez que crea estanterías y puertas de armario que abren allí donde se necesita organizar ropa y demás almacenamiento de la casa.
Planta de distribución del proyecto de reforma
Alzados de estancias y muebles diseñados para la nueva vivienda
Con tableros de madera DM lacados en un blanco roto se ha creado un mueble que organiza todo el espacio de la casa, dando una sensación envolvente e integrando de manera ordenada los diferentes elementos (puertas de habitaciones, puertas de armario, estanterías, rejilla de climatización, etc).
Cocina
Segundo dormitorio
Tercer dormitorio
Distribuidor: a la izquierda acceso a la cocina-comedor, en el centro puerta del tercer dormitorio y a la derecha acceso a la zona de dormitorios principales y cuartos de baño
Fotografía de la cocina-comedor durante la obra. Se colocó una baldosa hidráulica como pavimento para toda la estancia, dándole un ambiente tradicional a la par que moderno. Se aprovechó un conducto de ventilación para instalar una chimenea junto al futuro comedor