Modesta, sencilla... y especial
Con esta radiante reforma en el barrio de Sarrià de Barcelona, el estudio de arquietctura MARIAodena Estudi nos muestra cómo convertir tu casa en un lugar especial. Además de encajar el programa y embellecer acabados, la reforma perfecta cambiará tu modo de vida y cómo disfrutas tu casa. Con espacios atractivos, mobiliario funcional y abundante luz natural, tu casa, será otra cosa.
Fotografías de Pablo Ávila
- Tradición actualizada
- Color y material
- Funcional con detalles
- Un juego de acabados
- Con luz y cuidado
Tradición actualizada
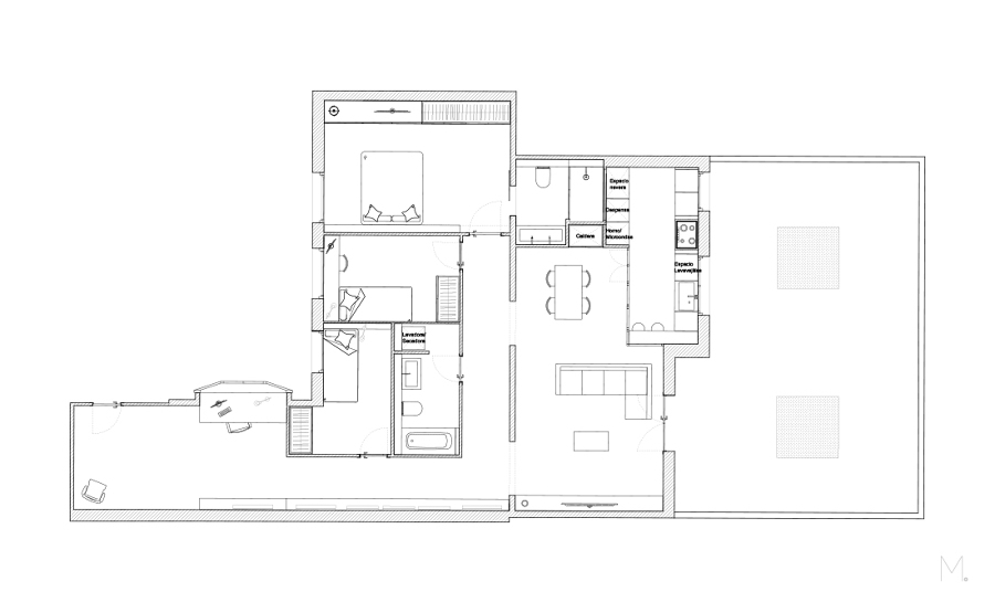
La intervención realiza modificaciones en la distribución original para acercar el programa a un modo de vida contemporáneo, abogando por espacios más holgados, circulaciones fluídas y transparencias. Además, la doble función de los espacios facilita un uso optimizado del interior, en el que las estancias son también lugares de paso y todo queda visualmente comunicado. El mobiliario a medida acompaña al usuario a través del programa, y la iluminación artificial destaca la materialidad de los elementos. El proyecto trata de conservar la estructura original del edificio mezclando la tradición con el nuevo diseño, en busca de un interior modesto y actual. La rudeza del muro de carga de ladrillo visto contrasta con el mobiliario de líneas sencillas y corte limpio, que a su vez se complementa con piezas de diseño. Simple, pero especial.
Color y material
El espacio principal se configura sencillo y holgado, de envolvente blanca y pavimento de madera. Un amplio ventanal introduce la luz de la terraza e ilumina el interior, más allá del límite de la estancia. El espacio queda teñido por el tono de la cerámica del forjado tradicional descubierto tras el falso techo. El color trae calidez a la estancia, y el blanco general potencia la elección de materiales.
Funcional con detalles
Un sencillo recinto separa la cocina del salón. La estancia queda enmarcada con un ventanal de carpintería de acero lacado en negro, formando una elegante cuadrícula que contrasta con el entorno. Se emplea un pavimento de baldosa hidráulica, enfrentado a la cerámica del techo, y el resto del mobiliario de cocina se resuelve en blanco. Se trata de un pequeño espacio altamente funcional, despejado y claro.
Un juego de acabados
Los baños son un juego de soluciones que resultan en espacios sofisticados y originales. El primero emplea un alicatado de piezas esmaltadas en blanco, aplicado de suelo a techo, creando un interior nítido y radiante. La baldosa hidráulica del suelo dota al espacio de cierto aire doméstico y cercano. El baño principal experiementa con un revestimiento de cemento con tinte verdoso, cubriendo por completo las superficies y dando forma al lavabo. Los reflejos y transparencias añaden profundidad a la estancia, y el juego de iluminación indirecta la sumerge en una atmósfera relajante.
Con luz y cuidado
El dormitorio principal se configura prácticamente sin mobiliario. Con un cabecero de obra que es también mesita auxiliar y superficie de apoyo, se resuelven de un gesto las necesidades de la estancia. La paleta de colores introduce el verde agua en la composición, creando un entorno elegante y apaciguado. Los puntos de luz se distribuyen con maestría por la estancia, dando lugar a pequeñas escenas dentro de un mismo espacio. La iluminación lo cambia todo.
1 Comentario
Muy bello, sobretodo por conseguir un ambiente de relax en toda la casa. En este proyecto se confirma aquello de que, a veces, Menos es Más