El encanto de un patio andaluz
Hay proyectos con los que uno se emociona. Una casa para un escritor y viajero en un antiguo corral de un barrio con duende, bajo el sol de Andalucía, sin duda es una buena motivación. Con este prólogo, Iniesta Nowell Arquitectos firman un proyecto que les lleva a ahondar en la historia y tradición constructiva del lugar con atención y respeto. El resultado es una casa moderna, abierta, luminosa, y con gracia.
- Más luz, más holgura
- Espacios permeables y flexibles
- Hacia la tradición
- Claro y funcional
- Forma y materialidad
- Tanto dentro como fuera
- La nueva vida del corral
Más luz, más holgura
La casa se sitúa en el barrio de San Miguel de Jerez de la Frontera, un arrabal de raíces flamencas, formado por un meticuloso enjambre de patios y casas de vecinos. La intervención tiene lugar en uno de los corrales entre medianeras, transformando por completo el espacio y su relación con el patio. El estado original de la vivienda presenta un interior lúgubre y mal ventilado, con estancias comprimidas y escasa permeabilidad. La intervención propone revisar la ordenanza, buscando la ampliación de la vivienda hacia una planta superior, así como la reorganización de los espacios en planta baja, y consiguiente entrada de luz.
Espacios permeables y flexibles
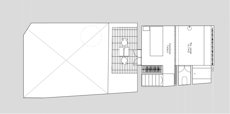
El acceso se realiza a través del patio, donde una magnífica colección de pilistras, palmeras y aloe veras, coronan el espacio y nos dan la bienvenida. A continuación se sitúa el espacio principal, recogiendo salón, comedor y cocina. La eliminación de la tabiquería antigua permite la reconfiguración de la planta baja como un espacio diáfano, abierto por completo al patio. La planta superior se eleva para alojar el dormitorio, enmarcado entre dos terrazas que proponen un uso flexible del programa, y una mayor comunicación entre el interior y exterior de la vivienda.
Hacia la tradición
El proyecto trata de emplear una paleta de materiales honesta y natural, respetando la tradición constructiva de la zona. El interior adquiere de esta forma cierto tono artesanal, traído al presente gracias a soluciones formales como la configuración de lucernarios, o el diseño de la liviana escalera. El blanco se concibe como el elemento de unión entre el pasado y el presente, expresando la naturalidad de los acabados y envolviendo el interior en un velo claro y nítido. El pavimento continuo de microcemento unifica el escenario como un elemento neutro, resistente e impermeable. Como telón de fondo, siempre, el patio andaluz.
Claro y funcional
Al fondo de la estancia, compartiendo espacio con el salón, se sitúa la cocina. Con una barra elevada que hace las veces de mesa de comedor, el recinto queda definido sin sacrificar la continuidad visual entre ambas zonas de la planta baja. La intervención busca en todo momento traer la mayor cantidad de luz natural al interior, jugando siempre con la entrada de manera indirecta y el reflejo sobre superficies blancas. Así, el techo de la cocina se abre en el extremo próximo al muro posterior de la finca, dejando caer la luz de manera tangencial al blanco de la pared, e inundando el interior de claridad. El mobiliario se dibuja sencillo, la disposición de elementos es estrictamente funcional, y el resto, alegrías del interiorismo.
Forma y materialidad
Una de las licencias creativas del la intervención es la escalera. Diseñada en dos tramos, combina el peso y materialidad del hormigón, con el carácter liviano de la chapa de acero. El dibujo del acero terminado en negro contra la pared de rasillón blanco, junto a la calidez de la carpintería de madera, ilustra el carácter ecléctico y del proyecto, así como la importancia de la composición armónica de materiales para un interior doméstico y agradable.
Tanto dentro como fuera
La nueva planta acoge el dormitorio, concebido como un conjunto de tres estancias que alternan espacios interiores y exteriores. Un amplio ventanal de vidrio translúcido comunica el interior con un patio de pavimento continuo y paredes de alicatado blanco. Aquí, el proyecto plantea la instalación de un pequeño jardín exótico donde cultivar plantas traídas de viajes alrededor del mundo. “The jungle”, así bautizado por el propietario, traerá un nuevo carácter al dormitorio, convirtiéndolo en un espacio más fresco, más dinámico y con más vida. La capacidad de transformación de las estancias es uno de los principales propósitos del proyecto, ofreciendo la posibilidad de configurar los espacios de manera completamente personal.
La nueva vida del corral
Y ya que uno decide vivir en uno de los barrios más populares de Jerez de La Frontera, ¿por qué no buscar un espacio donde admirar las vistas del campanario de la Iglesia de San Miguel, enmarcada entre las casas de los vecinos? Con esta segunda terraza se culmina el proyecto, empleando la tradicional baldosa de barro para el pavimento, que mancha el lienzo blanco con tonos terracota. La transformación de este antiguo corral propone un mayor disfrute del espacio y su entorno, desde el respeto a la tradición e historia del lugar, y un enfoque moderno, lleno de energía.
2 Comentarios
Le falta aún mucha decoración a esta casa....
excelente ideas