La casa del porche de piedra
Pablo
Profesional habitissimo | Publicado el 03/10/2018
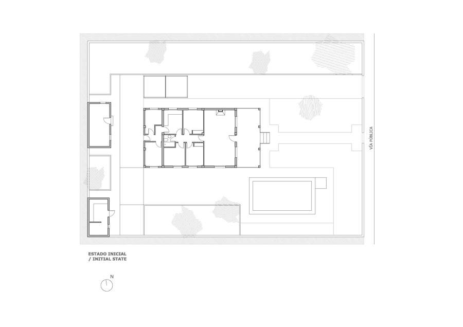
La actuación realizada en esta obra consistió en la reforma integral de un viejo chalet construido a finales de los años 70, desarrollado en una sola planta. Esta actuación incluía la redistribución de interiores, adecuación de fachadas y cubiertas, construcción de un nuevo porche más amplio y de una nueva piscina (previa demolición de los antiguos), y remodelación del jardín.
El porche como elemento protagonista
En este proyecto, el condicionante fundamental era la conservación de la estructura, reforzada en algunos puntos, que fijaba la situación de la casa centrada en la parcela, pudiéndose variar únicamente la ubicación de la nueva piscina con respecto al porche. El nuevo porche y la piscina son los elementos principales de la actuación. En cuanto al porche, se trata de una amplia pieza orientada al este, en la que su entramado estructural de estilo rústico y la piedra del muro de fachada, expresamente escogida, también presente en las jardineras frontales y en los bancos laterales de cierre, asumen todo el protagonismo.
7 Comentarios
Espectacular. Me encanta el porche de piedra y la piscina. Quien pudiera disfrutar de algo así. Felicidades por el trabajo.
No es que el interior no me guste, está bastante correcto, pero es que el exterior eclipsa completamente a cualquier otra parte de la casa. Perfecto el trabajo con el porche. Felicidades.
La verdad es que lo que más llama la atención en esta casa es sin duda su zona exterior el interior está muy bien pero no es tan espectacular. Igualmente es una casa muy bonita
Muchas gracias por vuestros comentarios. Como muy bien apuntáis, en la reforma integral de esta casa los tres elementos diferenciadores que la hacen única son el porche, la piscina y el jardín. El objetivo fundamental del proyecto consistía en idear una combinación acertada de estos tres elementos con la que conseguir una imagen rústica y a la vez mediterránea. Un saludo.
No hubiera costado nada integrar el lavaplatos con los muebles de la cocina, tal como está, canta....lo mismo que el silestone lila
El porche magnífico pero postizo, parece de otra vivienda...
Lliberós Salvador Arquitectos; son el estudio que realizó el proyecto de la casa del porche de piedra...son gente joven, competente, con mucho gusto, que estudian todo al detalle y proyectan cosas como las que se ven en las fotografías, desde la parte técnica, hasta ideas de decoración y proyecto del jardín y de las vallas, todo el conjunto queda muy armonioso y nos encanta, además de ser muy práctica su habitabilidad y confort.
estamos trabajando cada días mas para brindarle lo mejor en su reformas