Betanzos 83
Raúl Pecharromán
Profesional habitissimo | Publicado el 04/08/2021
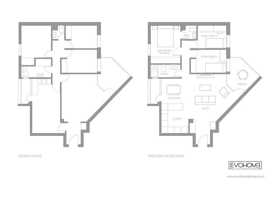
El objetivo principal de la intervención fue redistribuir la zona mas importante de la vivienda: el gran salón. Se eliminó el tabique entre el salón y la cocina para dar mas amplitud y luminosidad a la estancia. Además se amplió el espacio de almacenaje de la habitación principal y se añadió un aseo en suite.