Un piso Memphis para estudiantes
Siempre hemos creído en el color como una forma primitiva de inspiración que sirve para estimular nuestra creatividad. Nacemos y jugamos con juguetes de colores, bloques de colores, peluches de colores...De alguna manera es algo que todos llevamos dentro. Con el paso de los años, este sentimiento se pierde por diferentes razones.
En Imaisdé recuperamos el color para estimular la creatividad e inspirar a los tres estudiantes que se alojarán en este piso ferrolano de 56m2. ¿Cómo podemos llevar una paleta cromática refrescante y llamativa sin caer en una estética infantil? Rescatamos una de las tendencias actuales en decoración y apostamos por el estilo Memphis, que es una filosofía que se aleja de los sobrios y racionalistas patrones que dominaron gran parte del siglo XX haciendo un llamamiento a diseñadores y creativos para que dejaran volar la imaginación: los objetos adquirían formas inesperadas basándose en figuras geométricas como cubos, esferas o cilindros usados de un modo asimétrico.
A través de las diferentes composiciones gráficas creadas por Imaisdé e inspiradas en este movimiento, los diferentes vinilos invitan a los estudiantes a crear, a amar y a superarse; a creer en sí mismos durante sus etapas de estudio porque en el estudio creemos firmemente que casi todo está por inventar.
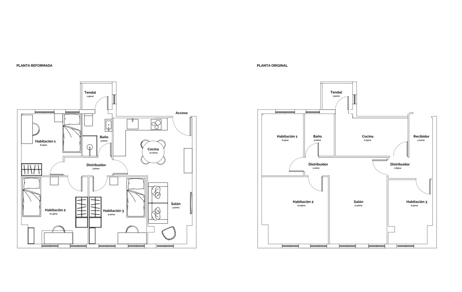
Constructivamente, se trata de una reforma integral en la que se han optimizado los espacios para crear tres habitaciones amplias y luminosas, un baño con acceso directo al tendal y una cocina abierta al salón con comedor.
Los azulejos de la cocina fueron escogidos por la temática estudiantil y simulan motivos hidráulicos renovados pintados con rotulador.
La cocina y el mobiliario son sencillos, económicos y de estilo escandinavo; se buscaron de esta manera no solo por un motivo económico, si no también para contrastar perfectamente con los pavimentos decorados del baño la cocina, así como enfatizar los vinilos de las paredes y los colores de las molduras.
El resultado es un piso diferente con un coste muy económico pensado por y para los estudiantes que lo van a utilizar.