Reforma integral de vivienda con redistribución de estancias de la vivienda
Gonzalo
Profesional habitissimo | Publicado el 07/07/2015
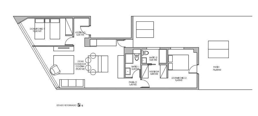
Esta pareja nos encargó un proyecto en el que había redistribuir una parque de la vivienda donde se ubicaba el baño salón y cocina, con el fin de aumenta el salón y el baño. La reforma completa se realizó en la calle Martinez de la Riva en Madrid.
Esta vivienda era una antigua guardería. La mayor dificultad la encontramos a la hora de redistribuir los baños, por los problemas con las bajantes, pero finalmente quedó todo perfecto. Además nuestros clientes decidieron optar por una cocina con barra americana.
El resultado lo podeis comprobar en las fotos del baño y las ideas de decoración sugeridas.
Esta vivienda era una antigua guardería. La mayor dificultad la encontramos a la hora de redistribuir los baños, por los problemas con las bajantes, pero finalmente quedó todo perfecto. Además nuestros clientes decidieron optar por una cocina con barra americana.
El resultado lo podeis comprobar en las fotos del baño y las ideas de decoración sugeridas.
Aquí el alicatado de las paredes se hizo con el azulejo tipo metro de 10x20 cm
En esta vivienda se optó por un baño alicatado con gresite y mampara de ducha con pavés