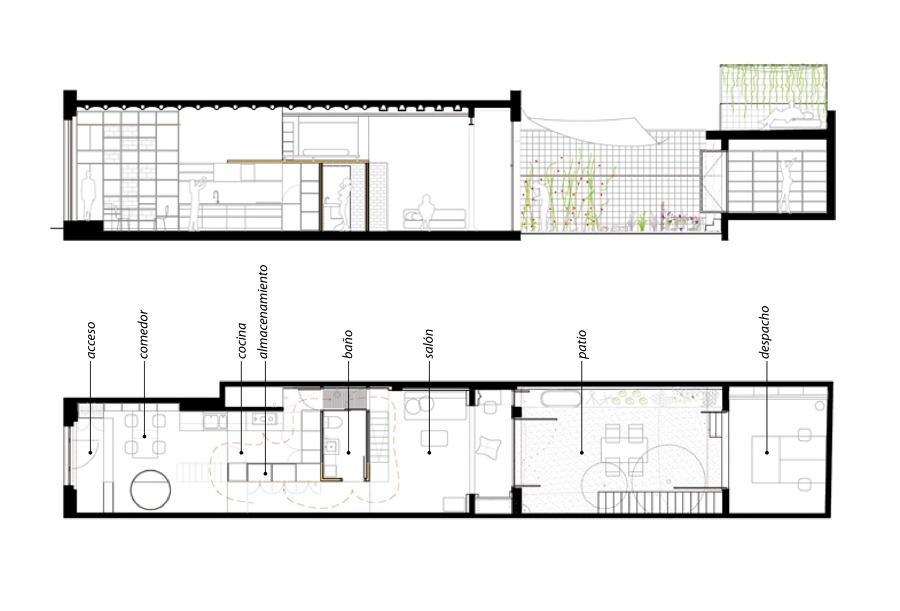
Una casa: un patio, una terraza y un despacho
Una parcela alargada entre medianeras en el barrio de Gracia de Barcelona da mucho juego: un patio para zonificar la vivienda, un altillo para articular estancias, un pozo que recuerda la historia del lugar como antigua zona de huertos, y un cuidado diseño como herramienta principal. Todo esto hace de este proyecto de CAVAA Arquitectes un atractivo ejemplo de intervención en el centro urbano.
- La doble función, espacio y estructura.
- Espacio único, ambientes definidos
- Mobiliario y distribución
- Íntimo y luminoso
- Un patio, una ampliación
La doble función, espacio y estructura.
El proyecto trata de conservar la naturaleza del espacio y aprovechar sus virtudes. La generosa altura original da lugar a un interior abierto y holgado, que logra transportar la luz de las fachadas al corazón de la casa. La vivienda se organiza longitudinalmente, ordenando los usos sucesivamente hacia el patio, que se convierte en continuación del interior. Los espacios se articulan alrededor de una pieza central que da soporte al núcleo húmedo, ofrece un espacio de altillo para el dormitorio, y esconde generosos espacios de almacenamiento.
Espacio único, ambientes definidos
El mobiliario a medida se convierte en la clave del diseño del interior. El gesto envuelve los espacios, generando superficies perimetrales que tan pronto ascienden hasta el techo en forma de estanterías, o bajan para continuar el trazado como encimera de cocina. La pieza central sitúa la banda de armarios estratégicamente para liberar una franja de circulación que comunica ambos extremos de la casa. El espacio queda unificado además gracias a la apertura del plano superior, que sugiere una doble circulación arriba y abajo.
Mobiliario y distribución
El mueble altillo consigue organizar las estancias, separando salón y cocina sin comprometer la continuidad espacial. El suelo recibe un tratamiento diferenciado, aplicando microcemento para las zonas húmedas y tarima para el resto. La madera se convierte en elemento vertebrador, solucionando los armarios y el soporte del altillo. La escalera también queda resuelta con una pieza de mobiliario que con una chapa plegada de acero es también estantería, exprimiendo el concepto de la doble función.
Íntimo y luminoso
El baño queda alojado bajo el altillo. Siguiendo la lógica del resto de la casa, el espacio se organiza en bandas, reservando una franja lateral para la ducha, que con paños de vidrio translúcido y un alicatado de cerámica esmaltada en blanco, se convierte en un maravilloso foco de luz. El resto del interior no teme a los colores oscuros, ya que el alicatado refleja la luz generando un espacio claro y despejado. Lavabo flotante de cerámica, apliques de pared y detalles en madera de acabado natural completan un diseño sobrio y elegante.
Un patio, una ampliación
El patio funciona como elemento central de una sucesión dentro-fuera-dentro que comunica el salón con una pequeña oficina instalada en el extremo de la parcela. Gracias al diseño de amplios ventanales de dos únicas hojas de vidrio, el límite del interior queda difuminado y el espacio se amplía hacia el patio con su apertura.
Las carpinterías de madera aportan calidez a la composición, al tiempo que suponen una solución eficiente, siendo la madera un aislante natural capaz de conservar la temperatura interior. El pavimento del patio se resuelve con grava como elemento uniforme que esconde irregularidades y parterres para los árboles y plantas que lo adornan. El muro se cubre con una estructura ligera de acero y malla metálica como soporte de las nuevas enredaderas, y el espacio quedará en el futuro envuelto en verde.