Licencia de Actividad para despacho profesional doméstico (Fisioterapia) en Madrid.
Mario Negrillo Ménguez
Profesional habitissimo | Publicado el 30/08/2017
El presente proyecto consiste en la realización de una licencia de actividad para un despacho profesional doméstico, destinado a consulta de fisioterapia.
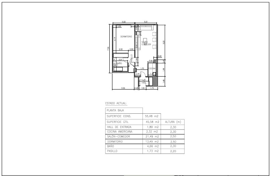
En este caso, se realiza la licencia de actividad de un despacho profesional doméstico, en el cual se va a ejercer una consulta de fisioterapia. Los despachos profesionales domésticos permiten a profesionales liberales utilizar 1/3 de la superficie de la vivienda en la que se está empadronado ejercer una actividad. En este caso se miro que dicha actividad fuera de uso compatible con la norma zonal que le aplicaba al edificio.
Como se puede observar, los cambios son mínimos. Se realiza únicamente la adaptación del dormitorio a sala de consultas. Igualmente se dispone de una zona de entrada o hall, que es compartido con la zona de comedor de la vivienda.