Licencia de Actividad para Nave Industrial en la Comunidad de Madrid
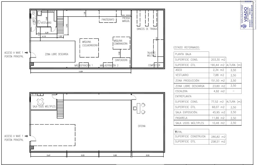
En este caso se trataba de una Nave Industrial diáfana, donde se trataba de realizar un altillo para zona de oficinas y zona de exposición de mobiliario, mientras en la parte baja de la nave se realizaría la zona de producción de muebles.
En el estado reformado se pueden observar las obras necesarias y las distintas zonas a realizar para poder ejercer la actividad tal y como deseaba el cliente. El altillo debía estar protegido contra el fuego en todo momento, ya que era una zona importante de evacuación por la posibilidad de existir en el mismo tanto personal propio como clientes.
Igualmente se realizó una legalización de la instalación eléctrica de la Nave, ya que se requería de un aumento de potencia eléctrica en la misma. Dicho visto bueno se realizó en el tiempo récord de 1 mes, en Agosto. Igualmente se realizaron las consiguientes legalizaciones de las instalaciones de contra incendios y registro industrial ante industria.
Exponemos este plano ya que en las Naves Industriales, suele ser de vital importancia la protección contra el fuego de la misma. Podemos observar como disponemos de central de incendios con pulsadores de alarma, protección de la estructuras, y sus aleros cortafuegos separadores de otras naves contiguas y colindantes, marcados por el Reglamente de Seguridad Contra Incendios en Establecimientos Industriales.