CASA LF
José Domingo Castro Navarro
Profesional habitissimo | Publicado el 28/01/2018
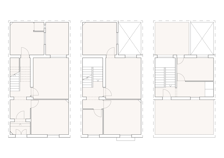
Reforma integral de vivienda entre medianeras en Sevilla, por medio de la actuación en la escalera conseguimos un nuevo aprovechamineto de los espacios.