Vivienda situada en la costa norte de la isla de tenerife, mirador al atlántico y a los atardeceres.
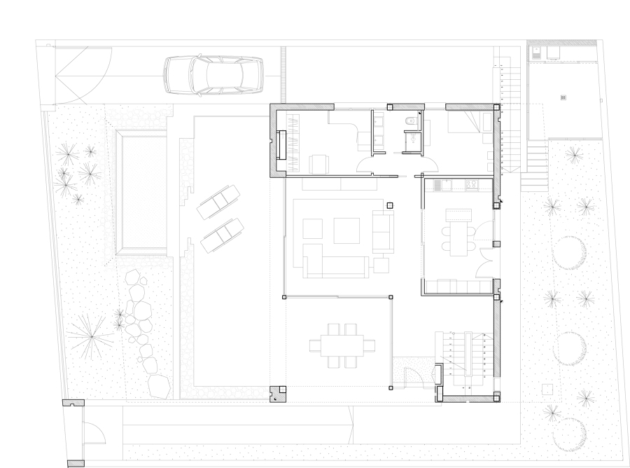
El programa se desarrolla en tres niveles, un sótano destinado a garaje y almacenes, planta baja destinada a zona de día conectada con el jardin y terraza exterior y planta alta destinada a dormitorio principal suite.
Vestibulo escalera planta alta con vistas al mar y al atardecer.
Vista exterior nocturna de la terraza y piscina
- Año de finalización:
- 2005
- Superficie:
- 250 m2
- Etiquetas descriptivas:
- técnicos, arquitectos, moderno funcional
Deja tu comentario
Deja tu comentario