Rehabilitación integral de caserío en Gipuzkoa
Dennis Lezeta Fernandez
Profesional habitissimo | Publicado el 11/03/2021
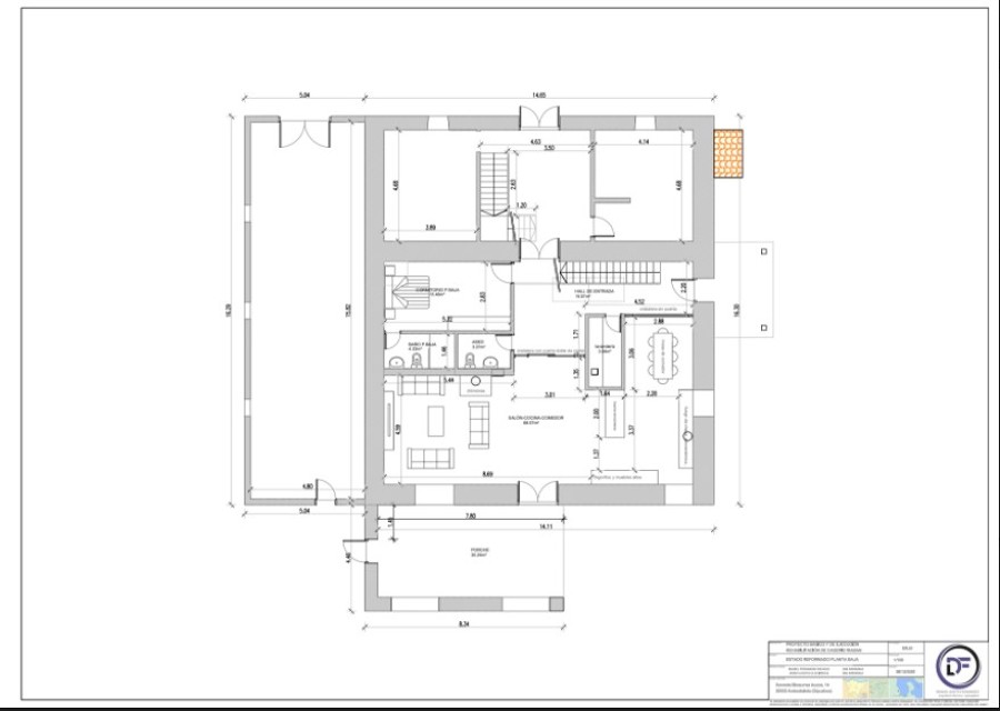
Se trata de un proyecto de rehabilitación integral de un caserío construido entre el siglo XVI y XVIII, el edificio se encuentra protegido por lo que el proyecto se ha realizado manteniendo un trato estrecho con el ayuntamiento para poder mantener un equilibrio entre las exigencias del ayuntamiento y el deseo de los clientes.
Se va a reformar por partes, siendo la primera fase de la intervención la rehabilitación de la fachada, la cubierta y la zona del pajar donde irá la vivienda principal.