Casa Trinidad, un hogar entorno al patio interior
Pablo
Profesional habitissimo | Publicado el 07/10/2015
Se trata de una casa ubicada en una zona urbana consolidada de Godella. La vivienda dispone de una fachada con orientación sur recayente a la calle y un patio interior en la parte norte del solar. La distribución se reparte entre planta sótano (bajo rasante), que alberga una sala multifuncional; planta baja, donde se dispone la zona de día articulada mediante el patio central; planta primera, destinada a la zona de noche; y planta baja cubierta, que cuenta con una pequeño estudio-biblioteca.
El patio como prolongación de la vivienda
El elemento que asume mayor protagonismo actuando de núcleo articulador de la vivienda es el patio central, constituyendo un espacio de desahogo de la misma. Este patio actúa como prolongación exterior del salón-comedor en planta baja, permitiendo la ventilación cruzada de esta pieza. También cede fachadas acristaladas a cocina, escalera y corredor de acceso a los dormitorios en planta primera, proporcionando mucha luz y vida a estos espacios.
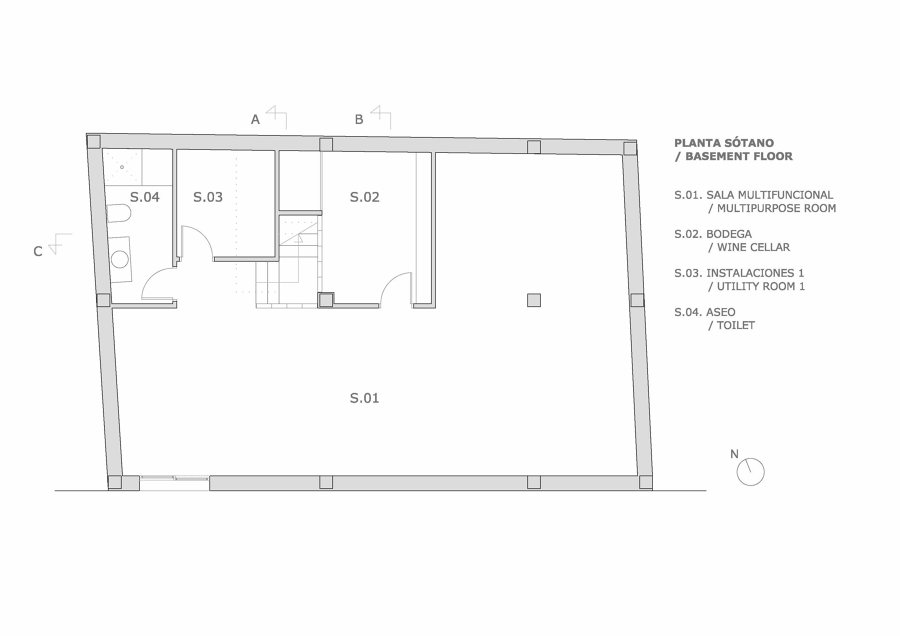
Los planos
Aquí tenéis los planos del proyecto, para que podáis haceros una idea mejor sobre la distribución.
4 Comentarios
Me encanta la incorporación visual del patio al resto de la vivienda, creo que le da muchísima luz, pero también le da mucha más amplitud. Felicidades.
Muy bonita la casa, se ve bastante acogedora aunque me faltan fotos! jejej
Menuda pedazo de casa. Me encanta que tenga un patio central, parece un claustro jajaja. Creo que como dice Sula eso le da muchísima luz. La decoración está bien, moderna pero muy acogedora.
Muchas gracias por vuestros comentarios. En casas de este tipo, con solo una fachada a la calle, y especialmente en la zona de levante, introducir un patio interior acristalado, dándole un tratamiento prioritario como en este caso, es un recurso que le puede dar muchísima vida y alegría al interior. Este patio además de la luz que introduce, también genera una agradable ventilación cruzada. Un saludo.